Marketing Remarks
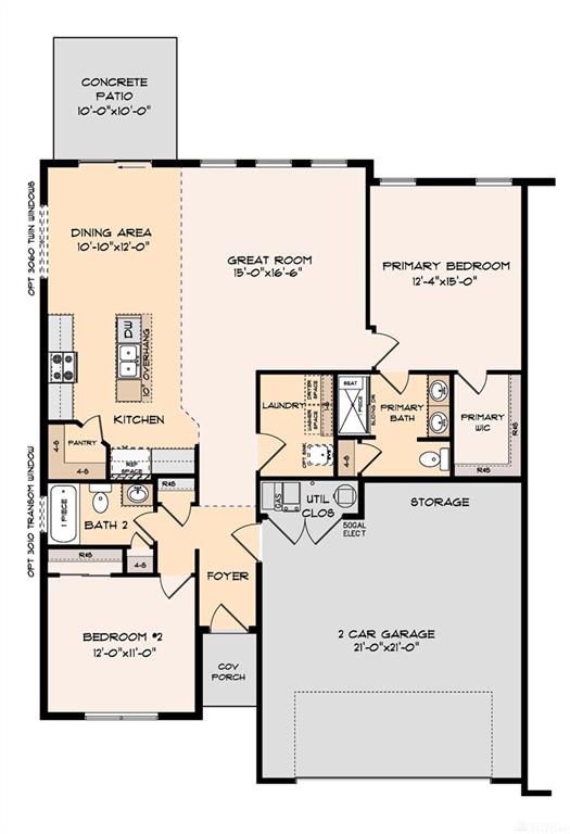
Step into the Lincoln II by Monarch Homes, a thoughtfully designed 1,323 sq. ft. ranch patio home offering luxury and low-maintenance living. Enjoy the convenience of lawn care and snow removal included. The open-concept layout features a spacious great room that flows seamlessly into the kitchen and dining area—perfect for everyday living and entertaining. The kitchen includes stylish cabinetry and a kitchen island. Luxury vinyl plank flooring runs throughout the foyer, kitchen, dining area, laundry, and baths for durability and easy upkeep. The owner’s suite offers a relaxing retreat with a spa-inspired bath featuring quartz vanity tops and stylish cabinetry. Built with 2x6 exterior walls and high-efficiency HVAC, this home provides lasting comfort and energy efficiency. Includes a 2-10 Home Warranty. To-be-built home.
additional details
- Heating System Natural Gas
- Cooling Central
- Garage 2 Car,Attached
- Total Baths 2
- Utilities 220 Volt Outlet,Natural Gas,Sanitary Sewer
- Lot Dimensions 0.14 acres
Room Dimensions
- Primary Bedroom: 15 x 12 (Main)
- Bedroom: 10 x 12 (Main)
- Breakfast Room: 12 x 10 (Main)
- Great Room: 16 x 15 (Main)
- Laundry: 8 x 6 (Main)
Great Schools in this area
similar Properties
1007 Hyde Park Drive
Spacious and well-cared-for 5-bedroom tri-level ho...
More Details
$369,900
1427 Weatherfield Court
Welcome to this beautifully updated one story home...
More Details
$359,000
205 Sheldon Drive
Welcome to “Warm and Cheerful Centerville.” Th...
More Details
$349,900
- Office : 937.434.7600
- Mobile : 937-266-5511
- Fax :937-306-1806
My team and I are here to assist you. We value your time. Contact us for prompt service.
Mortgage Calculator
This is your principal + interest payment, or in other words, what you send to the bank each month. But remember, you will also have to budget for homeowners insurance, real estate taxes, and if you are unable to afford a 20% down payment, Private Mortgage Insurance (PMI). These additional costs could increase your monthly outlay by as much 50%, sometimes more.
Courtesy: Ohio Broker Direct (614) 989-7215 Joan Elflein
Data relating to real estate for sale on this web site comes in part from the IDX Program of the Dayton Area Board of Realtors. IDX information is provided exclusively for consumers' personal, non-commercial use and may not be used for any purpose other than to identify prospective properties consumers may be interested in purchasing.
Information is deemed reliable but is not guaranteed.
© 2026 Georgiana C. Nye. All rights reserved | Design by FlyerMaker Pro | admin
