Marketing Remarks
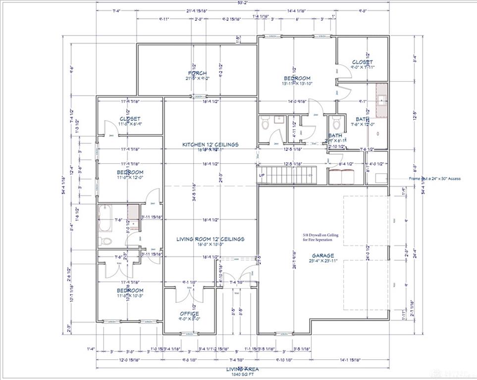
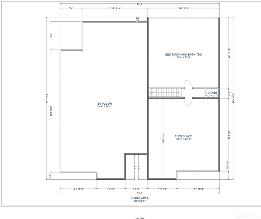
This new construction home is currently being built and offered for sale with an estimated completion in spring 2026. Located at 995 Rosenthal Drive in Tipp City, this property gives buyers the opportunity to secure a brand new home before it's finished. The home offer's 2,652 square feet of living space with three bedrooms and two and a half bathrooms. An open concept layout is planned to create a seamless flow between the main living areas, ideal for everyday living and entertaining. The design focuses on modern comfort with quality finishes and thoughtful details throughout. Depending on the stage of construction, buyers may still have the opportunity to select certain finishes or colors. Situated in a growing Tipp City neighborhood, the property provides convenient access to schools, parks, shopping, and major routes while maintaining a quiet residential setting.
additional details
- Heating System Forced Air,Natural Gas
- Cooling Central
- Garage 3 Car
- Total Baths 3
- Lot Dimensions 94 x 111
Room Dimensions
- Primary Bedroom: 14 x 14 (Main)
- Bedroom: 12 x 12 (Main)
- Bedroom: 10 x 12 (Main)
- Bedroom: 23 x 23 (Second)
- Entry Room: 7 x 5 (Main)
- Kitchen: 18 x 17 (Main)
- Living Room: 18 x 17 (Main)
- Rec Room: 24 x 23 (Second)
- Study/Office: 8 x 9 (Main)
Great Schools in this area
similar Properties
6513 River Birch Street
New construction in the beautiful Carriage Trails ...
More Details
$549,900
6519 River Birch Street
New construction in the beautiful Carriage Trails ...
More Details
$549,900
6525 River Birch Street
New construction in the beautiful Carriage Trails ...
More Details
$539,900
- Office : 937.434.7600
- Mobile : 937-266-5511
- Fax :937-306-1806
My team and I are here to assist you. We value your time. Contact us for prompt service.
Mortgage Calculator
This is your principal + interest payment, or in other words, what you send to the bank each month. But remember, you will also have to budget for homeowners insurance, real estate taxes, and if you are unable to afford a 20% down payment, Private Mortgage Insurance (PMI). These additional costs could increase your monthly outlay by as much 50%, sometimes more.
Courtesy: Coldwell Banker Heritage (937) 665-1800 Richard Pierce
Data relating to real estate for sale on this web site comes in part from the IDX Program of the Dayton Area Board of Realtors. IDX information is provided exclusively for consumers' personal, non-commercial use and may not be used for any purpose other than to identify prospective properties consumers may be interested in purchasing.
Information is deemed reliable but is not guaranteed.
© 2026 Georgiana C. Nye. All rights reserved | Design by FlyerMaker Pro | admin
